regatta.imot.bg Обяви За нас Контакти
Продава 3-СТАЕН
град Пловдив, Христо Смирненски
Гребна база, с Акт 16
156 000 €
305 109.48 лв.

(1 714 €, 3 352.29 лв./m2)
Цената е с включено ДДС
История на цената
Коригирана в 13:06 на 17 февруари, 2026 год.
Обявата е посетена 3217 пъти.
Площ:
91 m2
Етаж:
4-ти от 5
Газ:
НЕ
ТEЦ:
НЕ
Строителство:
Тухла, Въведен в експлоатация 2023 г.

Описание на имота:


Изискан Жилищен Комплекс, иновативен по дизайн и строителство, съчетаващ тихо уединение, модерни удобства, красиви гледки..., който безспорно ще спечели сърцето Ви!
Съвместен проект и безупречен резултат на международната строителна компания Platinum Invest Holding и RT Consult;
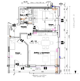
*Апартамент А12, който Ви предлагаме, се намира в Секция 3. Общата площ на жилището е разпределена в дневна с трапезария и кухненски бокс 32 кв.м., спалня, баня+WC, преддверие, тераса, избено помещение. Изложение: Изток-Юг;
- възможност за преустройство в ТРИСТАЕН апартамент;
*Допълнителни екстри:
- готов проект за интериорен дизайн;
- усилена ел. инсталация;
- окабеляване за смарт хоум система;
- ОВК инсталация за мултисплит система със стенни конвектори;
- плъзгащи врати към терасата;

*Комплексът се състои от: три секции, прецизно ситуирани спрямо изложението и гледките. Прелестен вътрешен двор, богато озеленен и благоустроен с детски площадки и зони за отдих, настилки система КЕОПС+, външни LED осветителни тела;
*Локация: кв. Отдих и Култура - Зеленото сърце на гр. Пловдив;
*Строителство: Техническото изпълнение е с най-висококачествените съвременни системи и материали, които са гаранция за енергоефективност, сигурност, функционалност, естетика и комфорт.
Монолитна стоманобетонна конструкция, керамични тухли Wienerberger, Топлоизолация - EPS стиропор-10 см, Вентилируема Фасада - LEA Ceramiche Concreto 6 mm 60x 120 и изолация с каменна вата Rockwool Airrock-10 см, полимерна мазилка Caparol, Декоративна мазилка, парапети от ковано желязо в съответствие с архитектурния проект, Дограма - Schüco, Германия - алуминиев профил с троен стъклопакет;
*Паркинг: гаражи и паркоместа в подземен паркинг, оборудван с алармена система за детекция на пожар и газ, както и със система за евакуация и аварийно осветление заедно с три вентилационни системи SystemAir. Подземни входни и гаражни врати HÖRMANN.
*Състояние: Стени и тавани - машинна гипсова мазилка, циментова замазка, Тераса - гранитогрес, Изградена ВиК инсталация до тапа, Монтирани водомери с дистанционно отчитане, Електроинсталация с ключове и контакти Legrand и Schneider, Видеодомофонна система Bticino, окабеляване за интернет и TV, Висок клас входни врати Hörmann с механично заключване, висококачествено покритие и елегантна визия.
*Общи части: Входно фоайе, етажни площадки и стълбища с подова настилка от италиански гранит, окачен таван с LED осветление PHILIPS. Високотехнологични асансьори Techpro по индивидуален дизайн;
*Сигурност: Контролиран достъп и 24-часово Видеонаблюдение IP-CCTV система на HIKVISION и система за контрол на достъпа BTicino - Legrand.
Особености
Тухла
Асансьор
С паркинг
Интернет връзка
Видео наблюдение
Контрол на достъпа
В затворен комплекс
За контакт:
0888325325
Инвеститор:
ПЛАТИНУМ ЕВРОПА
0888 325 325, 0888 225 225
ПЛАТИНУМ ЕВРОПА logo
Медал за прослужено време
В imot.bg от 2018 г.
regatta.imot.bg
Адрес:
област Пловдив, гр. Пловдив, ул. 'Парк Отдих и Култура' 1Н
ИЗПРАТИ ЗАПИТВАНЕ
ИЗПРАТИ ЗАПИТВАНЕТО

Продава 3-СТАЕН
град Пловдив, Христо Смирненски
Гребна база, с Акт 16
Обява: 1c176339375425346

156 000 €
305 109.48 лв.
История на цената
(1 714 €, 3 352.29 лв./m2)

Цената е с включено ДДС
ЗАПАЗИ ОБЯВАТА

Местоположение: град Пловдив, Христо Смирненски, Гребна база, с Акт 16

Допълнителни данни за имотите в района и сравнение с други райони

Покажи

Период

и 3 месеца

* Средните цени са определени чрез медианна стойност